크레인 설계 도면을 읽는 방법 - 초보자 안내서
이 안내서는 크레인 설계 도면을 읽는 방법을 이해하는 데 도움을 주기 위해 작성되었습니다. 이러한 도면은 공장, 창고, 건설 현장 등 다양한 환경에서 크레인을 안전하고 효과적으로 사용하는 데 필수적입니다. 크레인 설계 도면은 크레인 제작 방법, 사용되는 재료, 주어진 공간 내에서 작동하는 방법에 대한 세부 정보를 제공합니다.
계획 단계: 크레인의 크기, 용량 및 배치를 표시합니다.
구축 단계: 크레인의 구축 및 조립을 안내합니다.
작동 단계: 유지 관리 및 안전 점검에 대한 정보를 제공합니다.
크레인 도면은 크레인의 수명주기 전반에 걸쳐 크레인이 적절하고 안전하며 효율적으로 작동하는지 확인하는 데 사용됩니다.
크레인 도면을 읽는 방법을 아는 것이 중요한 이유
오버헤드 브리지 크레인 스팬 및 높이를 정확하게 계산하는 방법
크레인 설계 도면을 읽을 수 있으면 프로젝트에 참여하는 엔지니어, 건축가 및 제조업체와 보다 효과적으로 의사소통하는 데 도움이 됩니다. 도면의 기술적 세부 사항을 이해하면 정보에 입각한 질문을 하고 크레인이 필요한 모든 요구 사항을 충족하는지 확인할 수 있습니다.
더 나은 협업: 크기, 용량, 안전 기능과 같은 크레인 사양에 대해 더 쉽게 논의할 수 있습니다.
명확한 이해: 크레인이 공간에 적합하고 안전 표준을 충족하는지 확인합니다.
설치 및 작동 중 실수를 방지하는 데 도움이 됩니다.
크레인 도면을 읽는 방법을 알면 크레인 설치 및 작동 중 실수를 방지하는 데 도움이 됩니다. 이러한 도면은 여유 공간 및 하중 제한과 같은 중요한 세부 정보를 강조하여 문제가 발생하기 전에 방지하는 데 도움이 됩니다.
설치: 피팅 문제나 간격 문제와 같은 문제를 방지합니다.
작동: 사고를 방지하기 위해 크레인이 한계 내에서 사용되는지 확인합니다.
지속적인 유지 관리 및 안전 지원
크레인 설계 도면을 이해하는 것은 크레인을 양호한 상태로 유지하는 데 중요합니다. 이는 주요 부품의 마모 및 손상을 식별하고 수리 또는 교체를 안내하는 데 도움이 됩니다. 또한 이러한 도면에는 크레인의 안전한 작동을 보장하는 부하 제한 및 비상 정지 시스템과 같은 안전 기능이 포함되어 있습니다.
유지 관리: 잠재적인 문제를 더 쉽게 확인하고 적시에 수리를 수행할 수 있습니다.
안전: 크레인이 설계된 한계 내에서 안전하게 사용되도록 보장합니다.
요약하자면, 크레인 설계 도면을 읽는 방법을 아는 것은 크레인의 계획, 설치 및 작동 전반에 걸쳐 더 나은 결정을 내리는 데 필수적입니다. 이를 통해 팀과의 의사소통이 향상되고, 비용이 많이 드는 실수를 방지하며, 크레인이 수명 주기 내내 안전하게 작동하도록 보장합니다.
크레인 설계 도면의 유형
다양한 도면 유형 개요
크레인 설계에서는 크레인의 사양과 기능을 시각화하고 전달하기 위해 여러 유형의 도면이 사용됩니다. 이러한 도면은 크레인의 계획, 구성 및 작동에 도움이 되며 모든 측면을 신중하게 고려하고 문서화하도록 보장합니다. 크레인 설계도면의 주요 유형에는 개념도면, 예비도면, 시공도면, 제작도면이 있습니다. 각각은 크레인 수명주기의 다양한 단계에서 서로 다른 용도로 사용됩니다.
개념 도면: 크레인의 전반적인 아이디어와 레이아웃에 초점을 맞춘 초기 단계 설계입니다.
예비 도면: 개념 도면보다 더 자세하며 크레인의 구조와 구성 요소를 더 명확하게 보여줍니다.
건설 도면: 크레인의 실제 건설 및 설치를 안내하는 최종 정밀 도면입니다.
제작 도면: 이 도면은 개별 크레인 구성 요소를 제조하고 정확한 치수, 재료 및 조립 지침을 자세히 설명하는 데 사용됩니다.
접하게 될 주요 그림 유형
평면도(배치도)
평면도 또는 레이아웃 도면은 크레인이 건물이나 시설의 레이아웃에 어떻게 맞는지 시각화하는 데 중요합니다. 이 도면은 활주로 시스템과 크레인이 작동할 주변 지역을 포함하여 공간 내에서 크레인의 위치를 보여줍니다.
목적: 건물이나 작업 공간 내 크레인의 전체 레이아웃을 보여줍니다.
구성요소: 크레인의 위치, 활주로 시스템 및 트랙.
주요 세부정보:
벽 및 기타 기계에 대한 크레인 배치.
크레인이 트랙을 따라 이동하는 방법을 포함한 활주로 시스템.
크레인이 방해받지 않고 효율적으로 작동하기 위해 필요한 공간입니다.
입면뷰(수직뷰)
입면도는 크레인의 수직 관점을 제공하여 크레인이 건물 구조 및 기타 장비와 상호 작용하는 방식을 보여줍니다. 이러한 보기는 크레인 높이 및 여유 수준과 같은 크레인 구성요소의 위치 지정에 중점을 둡니다.
목적: 크레인이 건물이나 공간 내에서 수직으로 어떻게 맞는지 보여줍니다.
구성요소: 크레인 높이, 후크 거리, 지면이나 천장으로부터의 간격.
주요 세부정보:
크레인의 전체 높이와 크레인과 빔이나 천장과 같은 구조물 사이에 필요한 간격입니다.
후크의 리프팅 범위 및 작업 환경에 적합한 방법.
크레인 부품을 수직으로 배치하여 크레인이 안전하게 작동할 수 있는 충분한 공간을 확보합니다.
단면도(횡단면)
단면도 또는 횡단면은 크레인과 그 구성요소의 "절단면"을 보여주며 내부 구조와 기계 시스템을 드러냅니다. 이러한 뷰는 크레인의 다양한 요소가 상호 작용하고 조립되는 방식을 이해하는 데 필수적입니다.
목적: 크레인의 구조와 구성 요소에 대한 자세한 내부 보기를 제공합니다.
구성 요소: 구조용 빔, 대들보, 호이스트 및 기계 시스템.
주요 세부정보:
빔, 호이스트, 지지대를 포함한 크레인 본체의 단면도.
크레인의 강도와 기능성에 기여하는 구조 요소입니다.
크레인 구조 내에 다양한 기계 시스템(예: 호이스팅 시스템)이 어떻게 들어맞는지.
상세도면
상세 도면은 제작, 조립 및 설치에 세심한 주의가 필요한 특정 부품에 초점을 맞춰 개별 크레인 구성 요소 및 시스템을 자세히 보여줍니다. 이는 제조업체 및 조립 팀을 위한 매우 상세한 도면입니다.
목적: 크레인 부품의 제작 및 조립에 대한 정확한 세부 정보를 제공합니다.
구성요소: 특정 부품, 재료 및 조립 지침.
주요 세부정보:
정확한 치수, 재료 사양 및 용접 세부 사항.
단계별 조립 또는 설치 지침.
특정 구성 요소를 구성하거나 연결하는 방법에 대한 정보입니다.
이러한 다양한 유형의 크레인 설계 도면을 이해하면 크레인 계획, 설치 및 유지 관리의 기술적 측면을 더 잘 탐색할 수 있습니다. 각 도면 유형은 크레인의 안전하고 효율적인 작동을 지원하는 귀중한 정보를 제공합니다.
평면도(배치도)

평면도란 무엇입니까?
평면도(배치 도면이라고도 함)는 건물이나 시설 내 크레인 시스템의 배치와 위치를 보여주는 2차원 도면입니다. 이는 활주로 시스템, 트랙 및 크레인이 작동할 주변 영역을 포함하여 크레인이 공간에 어떻게 들어맞는지 보여줍니다. 평면도는 엔지니어, 설계자 및 운영자가 크레인의 배치를 시각화하고 사용 가능한 공간 내에서 안전하고 효율적으로 작동하는지 확인하는 데 도움이 되므로 크레인 설계에 매우 중요합니다.
크레인 설계의 역할:평면도는 작업 공간 내 크레인 위치를 명확하고 정확하게 표현하여 활주로 시스템 및 여유 구역과 같은 중요한 영역을 강조합니다. 이는 모든 크레인 구성요소가 다른 구조물이나 장비의 간섭 없이 작동할 수 있는 충분한 공간을 확보하도록 보장합니다.
레이아웃 도면을 해석하고 크레인 치수를 식별하는 방법
배치도면을 효과적으로 해석하기 위해서는 도면에 표시된 주요 구성요소와 치수를 이해해야 합니다.
크레인 및 활주로: 레이아웃 도면은 크레인이 트랙(활주로 시스템)을 따라 따라갈 경로를 나타냅니다. 크레인의 범위, 트랙 길이, 시설의 벽 및 기타 장비와 관련된 위치가 여기에 표시됩니다.
크레인 치수 식별: 크레인의 전체 너비, 길이 및 높이 여유를 이해하려면 평면도에서 측정값을 찾아보세요. 이는 크레인이 작동하는 데 필요한 공간을 보여주어 레이아웃이 방해받지 않고 움직일 수 있도록 보장합니다.
찾아야 할 주요 사항:
크레인의 범위: 크레인의 두 지지대 또는 활주로 트랙 사이의 수평 거리입니다.
이동 길이: 크레인이 트랙을 따라 이동할 수 있는 거리입니다.
위치 지정: 구조 요소, 벽, 문 및 기타 기계에 대한 크레인의 위치입니다.
평면도의 주요 특징
크레인 활주로: 배치 및 레이아웃
활주로 시스템은 시설 내에서 크레인의 움직임을 안내하는 레일이나 빔을 의미합니다. 다른 구조물과의 간섭을 피하기 위해 크레인의 트랙이 올바르게 배치되고 크레인의 작동 경로와 올바르게 정렬되는지 확인하는 것이 중요합니다.
배치: 활주로는 크레인 이동을 위한 적절한 간격을 제공하고 크레인의 전체 범위를 수용할 수 있도록 배치되어야 합니다. 크레인의 이동 거리를 커버할 수 있을 만큼 트랙이 충분히 연장되었는지 확인하십시오.
레이아웃: 활주로 레이아웃은 동작 범위, 주변 구조물과의 간격 등 크레인의 작동 요구 사항을 고려해야 합니다.
여유 공간: 안전한 크레인 작동을 위해 필요한 공간
안전 구역은 안전하고 효율적인 작동을 위해 장애물이 없어야 하는 크레인 주변 구역입니다. 이러한 공간은 크레인이 제대로 작동할 수 있는 충분한 공간이 있는지 확인하는 데 도움이 되도록 배치 도면에 표시되어 있습니다.
필수 간격: 평면도에는 크레인과 벽, 문 또는 기타 장비 사이에 필요한 최소 간격이 표시되어야 합니다. 예를 들어, 크레인과 천장 사이에는 충분한 수직 간격이 있어야 하며, 크레인과 다른 기계 사이에는 수평 간격이 충분해야 합니다.
안전 구역: 여유 구역은 크레인의 승강 영역, 트랙 및 제어 장치가 모두 안전한 위치에 있도록 보장하여 충돌을 방지하고 원활한 작동을 가능하게 합니다.
차원 및 척도: 측정값 표시 방법
평면도에는 일반적으로 구성 요소 간의 정확한 크기와 거리를 제공하기 위한 측정이 포함됩니다. 이러한 측정값은 밀리미터 또는 미터 단위로 제공되는 경우가 많으며 다이어그램을 실제 크기로 변환하는 데 도움이 되도록 도면의 축척이 표시됩니다.
측정값 표시 방법: 도면에 표시된 눈금에 주의하세요. 일반적인 배율은 1:100 또는 1:200일 수 있습니다. 이는 도면의 각 측정값이 특정 배율의 배수에 해당함을 의미합니다(예: 도면의 1단위는 실제 생활의 100단위와 같습니다).
치수 이해: 평면도에는 크레인 범위, 활주로 길이, 높이 여유 공간과 같은 주요 치수가 표시됩니다. 크레인이 사용 가능한 공간에 맞는지 확인하려면 이러한 측정값을 이해하는 것이 중요합니다.
예: 평면도 읽기
해석 방법을 이해하는 데 도움이 되도록 크레인 평면도의 실제 예를 살펴보겠습니다.
활주로 시스템: 레이아웃은 크레인의 이동을 안내하는 두 개의 트랙을 보여줍니다. 이러한 트랙은 측정값(예: "경간: 10미터")으로 표시되는 크레인의 폭에 맞춰 정렬됩니다. 트랙 길이(예: "트랙 길이: 20미터")도 표시됩니다.
호이스팅 영역: 크레인의 후크가 물체를 들어올리는 공간입니다. 이는 레이아웃에 명확하게 표시되어 크레인의 후크 경로와 크레인의 작업 높이를 보여줍니다.
제어 스테이션: 레이아웃에는 시설 내에서 크레인의 제어 스테이션(운전자의 객실 또는 제어판)이 어디에 위치하는지도 표시됩니다. 이는 운전자가 크레인의 움직임을 안전하게 제어하고 필요한 모든 제어 장치에 접근할 수 있도록 하는 데 중요합니다.
이 예에서 평면도는 다음을 나타낼 수 있습니다.
여유 구역: 장애물을 피하고 안전한 이동을 보장하기 위한 크레인 주변 공간 요구 사항입니다.
건물 크기: 크레인이 제대로 장착될 수 있도록 건물 내에서 사용 가능한 총 공간입니다.
활주로 위치: 구간 및 이동 길이에 대한 측정값을 포함한 트랙의 정확한 위치입니다.
평면도의 이러한 주요 특징을 이해하면 크레인이 시설 내에서 어떻게 작동하는지 명확하게 파악하고 건물의 운영 요구 사항을 충족하는지 확인할 수 있습니다.
입면뷰 해석(수직 뷰)

입면뷰란 무엇입니까?
입면뷰는 구조물이나 객체를 수직으로 투영한 것으로, 종종 측면이나 특정 각도에서 어떻게 보이는지 보여줍니다. 크레인 설계에서 입면도는 크레인의 수직 위치를 보여주고 크레인의 높이, 간격 및 건물 구조와의 상호 작용에 대한 주요 세부 정보를 제공합니다. 이러한 보기는 크레인이 공간에 어떻게 맞는지 이해하고 시설 규모 내에서 크레인이 안전하게 작동할 수 있는지 확인하는 데 중요합니다.
목적: 입면뷰의 주요 목적은 크레인의 높이, 필요한 여유 공간, 크레인이 지붕이나 지지대 등 건물의 인프라와 상호 작용하는 방식을 표시하는 것입니다.
수직 거리 및 간격을 표시하는 입면도의 역할
입면도는 크레인 시스템 내 수직 거리를 평가하는 데 필수적입니다. 이는 크레인이 건물의 수직 한계 내에 어떻게 맞는지 보여주고 크레인의 구성 요소와 시설 구조 사이에 적절한 간격을 두고 크레인이 안전하게 작동하도록 보장합니다.
입면뷰의 주요 역할:
수직 측정: 크레인 높이, 크레인 후크에서 건물의 가장 높은 지점까지의 거리 등 명확한 치수를 제공합니다.
간격: 입면도는 충돌을 방지하고 원활한 작동을 보장하기 위해 크레인과 건물 구성 요소 사이에 필요한 안전 간격을 식별하는 데 도움이 됩니다.
입면도의 주요 요소
크레인 높이 : 바닥에서 크레인 상단까지의 총 높이
크레인 높이는 입면도에서 중요한 요소로, 시설 바닥에서 크레인 교량이나 주 대들보 상단과 같은 크레인의 최상부까지의 총 수직 거리를 보여줍니다.
중요: 크레인 높이를 아는 것은 크레인이 건물의 높이 제한 내에 맞는지 확인하는 데 매우 중요합니다. 공간 부족이나 천장 장애물과 관련된 문제를 방지하는 데 도움이 됩니다.
후크 높이(리프트 높이): 크레인 후크가 수직으로 이동할 수 있는 거리
후크 높이(리프트 높이라고도 함)는 크레인 후크에서 건물 바닥까지의 거리를 나타냅니다. 이 측정값은 크레인이 물체를 수직으로 들어올릴 수 있는 높이를 나타냅니다.
중요성:크레인의 리프팅 용량을 결정하고 후크가 자재 리프팅에 필요한 높이에 도달할 수 있는지 확인하는 것이 중요합니다. 특히 다층 건물이나 높은 창고가 있는 시설에서는 키가 크거나 무거운 하중을 들어 올리려면 높은 후크 높이가 필요합니다.
후크와 구조물 사이의 간격: 안전 여유 보장
크레인 후크와 시설 구조물(지붕, 들보, 벽 등) 사이의 간격은 안전한 크레인 작동에 필수적입니다. 입면도에는 이러한 간격이 표시되어 구조 구성요소에 부딪히거나 손상되지 않고 후크가 이동할 수 있는 충분한 공간이 있는지 확인합니다.
안전 여유: 사고를 방지하고 크레인이 원활하게 작동할 수 있도록 하려면 적절한 간격이 중요합니다. 간격이 너무 작으면 충돌이 발생하거나 크레인 이동이 방해될 수 있습니다.
지붕 및 구조 요소: 크레인과 건물의 관계를 보여줌
입면도는 또한 크레인이 지붕, 들보, 기둥 또는 기타 머리 위 구조물과 같은 건물의 구조 요소와 상호 작용하는 방식을 보여줍니다.
지붕 정렬:간섭을 방지하려면 크레인의 높이와 간격이 지붕 구조와 일치해야 합니다. 입면도는 크레인과 건물 구성요소가 어떻게 함께 작동하는지 식별하고 크레인 작동 중 구조적 손상이나 간섭의 위험이 없는지 확인하는 데 도움이 됩니다.
예: 입면도 읽기
주요 세부 사항을 읽는 방법을 더 잘 이해하기 위해 크레인 입면도의 예를 분석해 보겠습니다.
크레인 높이: 도면에는 바닥에서 크레인 상단까지의 거리를 보여주는 총 크레인 높이가 12미터로 표시될 수 있습니다.
후크 높이: 후크 높이는 9미터로 표시될 수 있으며 이는 후크가 바닥에서 수직으로 이동할 수 있는 거리를 나타냅니다.
후크와 지붕 사이의 여유 공간: 입면뷰에는 후크와 건물 지붕 사이에 1.5m의 여유 공간이 표시되어 후크가 천장에 닿지 않고 자유롭게 이동할 수 있습니다.
지붕과 빔의 상호 작용: 입면도는 크레인의 구성 요소가 건물 구조와 어떻게 정렬되는지도 보여줍니다. 예를 들어, 크레인의 호이스팅 메커니즘과 브리지를 빔이나 지붕 트러스 아래에 배치하여 원활한 작동을 위한 충분한 공간을 확보할 수 있습니다.
이러한 세부 사항을 주의 깊게 읽으면 크레인이 건물의 수직 공간에 맞는지, 안전한 작동을 위한 적절한 여유 공간이 있는지 평가할 수 있습니다. 올바른 크레인 선택, 설치 및 안전 관리를 위해서는 이러한 요소를 이해하는 것이 필수적입니다.
단면도(횡단면)
단면도란 무엇입니까?
단면뷰(횡단면이라고도 함)는 구조를 절단하여 평면도나 입면도와 같은 외부 뷰에 표시되지 않는 내부 세부정보를 보여주는 도면 유형입니다. 크레인 설계에서 단면 뷰를 통해 설계자, 엔지니어 및 운영자는 빔, 대들보, 호이스팅 시스템 및 이동 메커니즘을 포함하여 크레인의 내부 구성 요소와 구조를 시각화할 수 있습니다.
중요성:단면도는 내부 부품이 어떻게 배열되어 있는지 보여줌으로써 크레인 설계에 대한 더 깊은 이해를 제공하고 크레인 구성 요소가 올바르게 결합되고 안전하게 작동하는지 확인하는 데 도움이 됩니다.
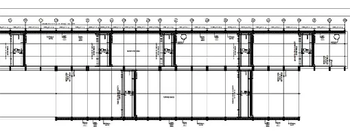
예:Santiago Metro 조립식 부품 생산 및 보관 프로젝트의 평면도에서 볼 수 있듯이 단면선은 C이고 단면의 방향은 오른쪽입니다.
클라이언트인 섹션 CC가 제공한 단면 도면에서 위에서 아래로(왼쪽에서 오른쪽으로) 순서대로 볼 수 있습니다. 10-톤 오버헤드 브릿지 크레인, 조립식 부품 컨베이어 벨트, 모노레일 호이스트 서스펜션 시스템, 자재 취급용 10-톤 세미 갠트리 크레인, 적재용 4x6.25-톤 갠트리 크레인. 이 세 가지 유형의 크레인은 완성된 조립식 구성 요소를 공장 외부 저장 공간으로 운반하기 위해 협력합니다.
단면도에 내부 구조와 주요 기계 구성요소가 표시되는 방식
단면도는 크레인의 내부 구조에 대한 자세한 통찰력을 제공합니다. 특정 평면을 따라 크레인을 절단함으로써 주 대들보, 호이스트 장비 및 모터와 같은 중요한 구성 요소의 위치를 드러냅니다. 이러한 뷰는 크레인의 작동 방식, 중량 분산 방식, 기계 시스템이 실제로 작동하는 방식을 평가하는 데 필수적입니다.
단면도의 주요 이점:
내부 레이아웃: 빔, 바퀴, 모터, 전기 시스템과 같은 구성 요소가 크레인 내에서 어떻게 배열되어 있는지 보여줍니다.
조립: 부품이 어떻게 결합되고 상호 작용하는지에 대한 명확한 그림을 제공하여 크레인 작동에 영향을 미칠 수 있는 설계 문제가 없도록 보장합니다.
단면뷰의 주요 기능
주 대들보 및 빔 설계: 주요 하중 지지 구성 요소 이해
주 대들보와 빔은 크레인의 하중을 지지하는 주요 구조 요소입니다. 단면도는 빔의 두께, 재료, 배치를 포함하여 이러한 구성요소의 설계와 레이아웃을 보여줍니다.
하중 분산: 단면 보기는 크레인이 운반하는 하중의 무게를 지탱할 수 있도록 빔의 크기와 위치가 적절한지 확인하는 데 도움이 됩니다. 빔이 올바르게 설계되지 않으면 구조적 결함이 발생하거나 하중 처리가 부적절할 수 있습니다.
주행 메커니즘 및 모터 배치: 크레인의 이동 시스템 해석
단면도는 활주로를 따라 크레인의 움직임을 구동하는 이동 메커니즘과 모터 배치를 보여줍니다. 이러한 구성 요소는 크레인의 이동성과 기능에 매우 중요합니다.
모터 및 드라이브 시스템: 단면 뷰는 트랙을 따라 크레인을 움직이는 모터, 기어박스 및 드라이브 샤프트의 정확한 위치를 보여줍니다. 크레인이 얼마나 효과적으로 이동하는지, 그리고 의도한 경로를 따라 원활하게 이동할 수 있는지 여부를 평가하려면 이러한 시스템의 레이아웃을 이해하는 것이 중요합니다.
여행 메커니즘:단면 뷰는 크레인의 바퀴 또는 트랙 시스템이 구조물과 정렬되어 크레인이 방해 없이 이동하고 무게를 균등하게 분산시키는 방법을 보여줍니다.
게양 장비 레이아웃:호이스트, 트롤리 및 후크 배치
단면 뷰에는 트롤리, 호이스트 및 후크를 포함한 호이스트 장비 레이아웃도 강조되어 있습니다. 이러한 구성 요소는 크레인의 하중을 올리고 내리는 역할을 담당하므로 위치 지정은 운영 효율성에 매우 중요합니다.
호이스트 메커니즘: 단면도는 모터, 드럼 및 와이어 로프 시스템을 포함하여 크레인 구조에 대한 호이스트의 위치를 보여줍니다. 이는 호이스트가 제대로 작동할 수 있는 적절한 공간이 있는지 평가하는 데 도움이 됩니다.
트롤리 이동: 단면도는 호이스트와 후크를 고정하는 트롤리가 크레인의 브리지를 따라 이동하는 방식을 보여줍니다. 레이아웃은 원활한 이동을 보장하고 다른 크레인 부품과의 간섭을 방지하는 데 중요합니다.
후크 배치: 단면 뷰에는 후크가 매달린 방식과 화물과 상호 작용하는 방식이 표시되어 크레인의 리프팅 용량이 설계 및 작동 요구 사항에 부합하는지 확인하는 데 도움이 됩니다.
예: 단면도 읽기
읽는 방법을 이해하기 위해 샘플 섹션 뷰를 살펴보겠습니다.
주 대들보 및 빔 레이아웃: 단면뷰에서는 강철 I-빔과 같은 특정 재료로 설계된 크레인 상단을 따라 달리는 주 대들보를 볼 수 있습니다. 도면을 보면 대들보의 두께가 500mm로 무거운 하중을 견딜 수 있도록 고강도 강철로 만들어졌음을 알 수 있습니다. 빔은 유사한 재료로 설계되었지만 치수가 다른 대들보 아래에 표시될 수 있습니다.
이동 메커니즘: 단면도에는 교량의 한쪽 끝에 배치된 크레인 모터가 표시됩니다. 섹션 하단을 따라 기어박스, 구동 모터 및 휠 배치를 볼 수 있으며 크레인의 휠이 활주로 시스템에 올바르게 정렬되어 있는지 확인할 수 있습니다.
호이스트 장비: 단면도에는 크레인의 주 대들보 중앙에 호이스트가 장착되어 있고 이를 따라 움직이는 트롤리가 표시될 수 있습니다. 후크는 호이스트 아래에 위치하여 크레인의 스팬을 따라 이동하여 하중을 들어 올리고 이동하는 방법을 보여줍니다.
단면도에서 이러한 구성요소를 주의 깊게 해석하면 크레인의 내부 설계를 더욱 명확하게 파악하고 주요 부품이 어떻게 함께 작동하여 화물을 안전하게 들어올리고 이동하는지 이해할 수 있습니다.
요약하면 단면 보기는 크레인의 내부 구조와 시스템에 대한 중요한 통찰력을 제공합니다. 이는 엔지니어와 운영자가 크레인의 기능과 구성 요소가 어떻게 결합되는지 이해하는 데 도움이 되므로 적절한 설계, 작동 및 유지 관리에 필수적입니다.
상세 도면: 작은 글씨까지 자세히 살펴보기
상세 도면이란 무엇입니까?
상세 도면은 특정 부품이나 구성 요소에 초점을 맞춘 크레인 설계에 사용되는 매우 상세하고 정밀한 도면입니다. 이 도면에는 크레인의 각 부품에 대한 크기, 재질, 제조 공정 및 조립 지침이 자세히 나와 있습니다. 일반 배치도나 단면도와 달리 상세도는 더 세밀한 부분까지 확대하여 각 부품을 정확하게 제조하고 조립할 수 있습니다.
중요성:세부 도면은 크레인 설계를 현실화하는 데 필수적입니다. 이는 서로 완벽하게 맞는 구성 요소를 생산하는 데 필요한 정확한 사양과 지침을 제공하여 크레인이 설계된 대로 작동하도록 보장합니다.
상세 도면이 제조 및 조립 시 높은 수준의 정밀도를 제공하는 방법
세부 도면은 복잡한 크레인 구성 요소를 제조하는 데 필요한 정밀도를 제공하므로 중요합니다. 각 부품을 가장 작은 요소로 분해하여 제조업체, 용접공 및 조립공이 사양을 명확하게 이해할 수 있도록 합니다. 이러한 정확한 세부 사항이 없으면 제작이나 조립 시 오류가 발생할 수 있으며 이는 크레인의 안전과 기능에 영향을 미칠 수 있습니다.
제조의 정확성: 세부 도면은 정확한 치수, 재료 유형 및 공차를 지정하여 각 부품이 정확한 사양에 따라 생산되도록 합니다.
조립 지침: 이 도면은 크레인 조립을 위한 청사진 역할도 하며 구조적 무결성과 원활한 작동을 보장하기 위해 구성 요소를 조립하고 고정하는 방법을 보여줍니다.
상세도의 주요 요소
부품 사양: 세부 측정 및 재료
상세 도면은 길이, 너비, 높이, 두께를 포함하여 각 부품의 치수에 대한 포괄적인 정보를 제공합니다. 이러한 측정은 각 구성 요소가 전체 크레인 설계에 적합하고 다른 부품과 올바르게 상호 작용하는지 확인하는 데 중요합니다.
재료 사양: 상세 도면에는 강철 등급, 코팅 유형 또는 내식성 합금과 같은 특수 재료 등 각 부품에 필요한 재료도 표시됩니다.
공차: 부품이 올바르게 결합되도록 허용되는 크기 편차인 공차를 지정합니다. 공차는 부품이 너무 크거나 작아서 작동 문제나 안전 문제가 발생할 수 있는 것을 방지합니다.
제작 세부사항: 각 구성요소의 제조 방법
세부 도면에는 각 부품을 제작하는 방법이 나와 있습니다. 여기에는 절단, 용접, 조립 및 마감 공정에 대한 지침이 포함됩니다. 이러한 지침은 각 구성 요소가 정확한 설계 사양에 맞게 제작되고 올바르게 조립될 수 있도록 보장합니다.
용접: 용접된 부품의 경우 세부 도면에 사용할 용접 유형(예: 필렛 용접, 맞대기 용접)과 크기가 지정됩니다. 이는 용접 조인트의 강도와 무결성을 보장하는 데 중요합니다.
패스너: 볼트나 리벳과 같은 패스너의 유형과 크기, 안전한 조립을 위해 사용해야 하는 위치도 지정합니다.
마감재: 세부 도면에는 부품을 부식으로부터 보호하기 위해 분체 코팅이나 아연 도금과 같은 표면 마감재에 대한 정보도 포함될 수 있습니다.
조립 지침:부품이 어떻게 결합되는지 이해하기
상세 도면의 주요 역할 중 하나는 다양한 크레인 구성 요소를 조립하는 방법을 보여주는 것입니다. 이 도면은 각 부품이 어떻게 결합되는지에 대한 단계별 지침을 제공하여 누락되거나 일치하지 않는 부품 없이 크레인을 빠르고 정확하게 조립할 수 있도록 보장합니다.
조립 순서: 세부 도면에는 종종 조립 순서가 표시되어 부품이 올바른 순서로 조립되도록 보장합니다.
가구 제조 및 정렬: 또한 크레인 전체에서 적절한 구조적 무결성과 정렬을 보장하기 위해 부품을 정렬, 볼트 체결 또는 용접하는 방법을 보여줍니다.
예: 상세 도면 읽기
세부 도면이 어떻게 작동하는지 더 잘 이해하기 위해 호이스팅 메커니즘 부품의 예를 분석해 보겠습니다.
구성요소: 호이스트 드럼.
부품 사양: 도면에는 직경과 길이를 포함하여 드럼의 정확한 치수가 표시됩니다. 또한 재질(예: 강철 등급)과 공차 한계(예: ±0.5mm)도 지정합니다.
제작 세부 사항: 도면에는 재료가 무거운 하중을 견딜 수 있을 만큼 강한지 확인하기 위한 절단, 솔기 용접, 열처리와 같은 특수 처리가 포함될 수 있는 호이스트 드럼을 만드는 과정이 표시됩니다.
조립 지침: 도면은 호이스트 드럼이 전체 크레인 시스템에 어떻게 맞는지 보여줍니다. 샤프트에 위치를 지정하는 방법과 이를 제자리에 고정하는 데 필요한 패스너에 대한 지침을 제공합니다. 드럼을 크레인의 호이스팅 모터 및 와이어 로프 시스템과 정렬하는 방법에 대한 지침이 있을 수 있습니다.
상세 도면은 크레인 설계에 필수적인 도구입니다. 이는 크레인의 구성 요소를 올바르게 제작, 조립 및 설치하는 데 필요한 정밀도를 제공합니다. 정확한 부품 사양, 명확한 제작 세부 사항 및 포괄적인 조립 지침이 포함된 이러한 도면은 크레인이 안전하게 제작되고, 예상대로 작동하며, 수명 기간 동안 최적으로 작동하도록 보장하는 데 중요한 역할을 합니다. 따라서 세부 도면을 이해하고 해석하는 것은 크레인 설계, 건설 또는 유지 관리에 관련된 모든 사람에게 핵심 기술입니다.
치수, 척도 및 표기법 해석
크레인 도면의 치수
크레인 도면의 치수를 이해하는 것은 부품과 구조물을 올바른 크기로 제작하고 설계 사양에 맞게 적절하게 맞추는 데 중요합니다.
길이, 너비, 높이:이는 크레인 부품의 크기를 설명하는 기본 치수입니다. 크레인 도면에서는 도면의 축척에 따라 측정값이 밀리미터(mm) 또는 미터(m)로 표시되는 경우가 많습니다. 예를 들어:
길이는 빔의 한쪽 끝에서 다른 쪽 끝까지의 거리를 나타낼 수 있습니다.
폭은 일반적으로 부품 전체의 거리를 나타냅니다(예: 대들보 또는 활주로 시스템의 폭).
높이는 종종 바닥에서 크레인 구조물 상단까지의 수직 거리 또는 후크 높이를 나타냅니다.
간격:크레인 도면에서 간격은 서로 다른 부품 사이의 거리를 나타냅니다. 예를 들어 지지 기둥 사이의 거리, 크레인 레일 사이의 거리 또는 빔과 호이스팅 메커니즘 사이의 간격 등이 있습니다. 크레인이 환경 내에서 원활하게 이동하고 구성 요소가 서로 간섭하지 않도록 하려면 정확한 간격이 중요합니다.
측정기준 읽기
크레인 도면의 치수를 읽으려면 선, 화살표 또는 모양 옆의 숫자에 주의하십시오. 이는 특정 기능의 측정을 나타냅니다. 예를 들어:
선형 치수: 각 끝에 화살표가 표시되어 있으며 길이를 나타내는 선으로 연결되어 있습니다.
직경: 크기를 나타내는 원과 치수로 표시됩니다.
높이 및 여유 공간: 종종 지면이나 바닥 수준과 같은 기준점으로부터의 수직 거리를 나타내는 숫자로 지정됩니다.
규모의 중요성과 크레인 도면에 표현되는 방식
크레인 도면의 축척은 도면 크기와 크레인 또는 해당 구성 요소의 실제 크기 사이의 관계를 알려줍니다. 예를 들어 도면의 축척이 1:100인 경우 도면의 1단위가 실제로는 100단위와 같다는 의미입니다. 크레인 설계에 사용되는 일반적인 스케일은 크레인의 복잡성과 크기에 따라 1:100, 1:200 및 1:500입니다.
저울을 읽는 방법:크레인 도면에는 제목 블록이나 도면 근처에 사용된 축척이 표시되어야 합니다. 항상 척도를 확인하여 치수를 올바르게 해석하고 있는지 확인하십시오.
1:100 축척: 도면의 1cm는 실제 100cm(1미터)를 나타냅니다.
1:200 축척: 도면의 1cm는 실제로는 200cm(2미터)를 나타냅니다.
축척을 알면 설명 중인 크레인, 구성 요소 또는 시스템의 상대적인 크기를 이해하는 데 도움이 되며 크거나 상세한 도면을 다룰 때에도 실제 크기를 시각화할 수 있습니다.
표기법 및 기호
크레인 설계 도면에서 표기 및 기호는 크레인 구성 요소의 재료, 표면 마감, 공차 및 기타 주요 기능에 대한 중요한 정보를 제공합니다. 이는 크레인이 올바른 사양에 따라 제조 및 조립되었는지 확인하는 데 중요합니다.
크레인 도면에 사용되는 일반적인 기호:
재료 기호: 각 구성 요소에 사용되는 재료 유형을 나타냅니다. 예를 들어:
S는 강철입니다.
알루미늄의 경우 AL.
ST는 구조용 강재입니다.
표면 마감: 다음과 같이 구성 요소에 적용되는 마감 유형을 나타냅니다.
부식 방지를 위해 아연 도금.
미적 또는 보호 목적으로 적용된 코팅을 나타내기 위해 페인트됩니다.
공차 기호:공차는 부품 크기의 허용 가능한 변동을 나타냅니다. 이러한 기호는 성능에 영향을 주지 않고 부품이 지정된 치수에서 얼마나 달라질 수 있는지를 나타냅니다. 공차는 일반적으로 ±0.5mm와 같이 치수 옆에 표시됩니다.
표준 표기법:
ANSI 및 ISO 표준: 이러한 국제 표준은 크레인 도면이 다양한 국가 및 산업 전반에 걸쳐 균일하고 쉽게 해석되도록 보장합니다. 표준 표기 시스템은 용접 세부 사항, 재료 등급 또는 부품 식별 번호와 같은 중요한 정보를 표시하는 데 종종 사용됩니다.
공통 표기법 요소:
용접 기호: 조인트를 용접하는 위치와 방법을 나타냅니다.
볼트 및 패스너 기호: 볼트, 너트 및 기타 패스너를 설치하는 위치와 방법을 지정합니다.
나사산 기호: 볼트나 나사에 사용되는 나사산 유형을 나타냅니다.
이러한 표기법은 크레인 설계 또는 제조에 관련된 모든 사람에게 필수적입니다. 이는 크레인 제작에 올바른 재료, 프로세스 및 공차가 사용되도록 보장하기 때문입니다.
크레인 도면을 읽을 때 주요 고려 사항
공차 및 한계 이해
크레인 설계의 공차 및 한계는 크레인의 안전하고 효과적인 작동을 보장하는 치수 또는 측정의 허용 가능한 변화를 나타냅니다.
공차가 중요한 이유: 공차는 부품의 치수가 명시된 측정값에서 벗어날 수 있는 정도를 지정합니다. 이러한 편차는 크레인의 성능, 안전 및 수명에 영향을 미칠 수 있습니다. 예를 들어, 빔 길이나 대들보 정렬의 약간의 차이는 크레인의 균형, 하중 분산 및 원활한 작동 능력에 영향을 미칠 수 있습니다.
공차 유형:
치수 공차: 빔 길이나 후크 거리와 같이 부품에 허용되는 크기 변화를 나타냅니다.
기하학적 공차: 구성 요소의 형태, 방향 또는 위치를 처리하여 부품이 올바르게 서로 맞물리고 의도한 대로 작동하는지 확인합니다.
공차를 읽는 방법: 공차는 일반적으로 크레인 도면의 치수 근처에 표시되며 기호로 표시됩니다(예: ±0.5mm 또는 치수 옆에 공차 기호). 정확한 제조 및 조립을 위해서는 이러한 공차를 이해하는 것이 필수적입니다.
부하 용량 검토
부하 용량은 크레인이 안전하게 들어 올리도록 설계된 최대 중량 또는 힘을 나타냅니다. 크레인이 구조적 한계를 초과하지 않고 의도한 하중을 처리할 수 있도록 하려면 이 정보를 올바르게 해석하는 것이 중요합니다.
부하 용량을 해석하는 방법:
최대 부하 용량: 크레인의 최대 리프팅 용량은 일반적으로 톤(예: 10-톤, 20-톤)으로 지정됩니다. 이 값은 구조적 손상이나 작동 오류의 위험 없이 크레인이 안전하게 들어올릴 수 있는 최대 중량을 반영합니다.
하중 분산: 일부 크레인은 하중이 들어 올려지는 높이나 거리에 따라 하중 용량이 다양합니다. 예를 들어, 크레인은 더 낮은 높이에서 더 무거운 하중을 들어올릴 수 있지만 더 높은 도달 범위에서는 제한됩니다.
듀티 클래스: 크레인 도면에는 크레인 작동 빈도와 중량을 설명하는 듀티 클래스 등급(예: 클래스 A, 클래스 C)이 포함되는 경우가 많습니다. 이는 크레인이 시간이 지나도 일관되게 부하를 처리할 수 있는지 평가하는 데 도움이 됩니다.
도면에서 부하 용량을 확인하는 방법:부하 용량 세부 사항은 기술 사양이나 크레인 설계와 함께 제공되는 부하 차트에 포함되는 경우가 많습니다. 크레인의 적재 용량이 시설의 운영 요구 사항과 일치하는지 확인하십시오.
안전 기능 및 규정 준수
크레인 설계에서는 안전이 가장 중요하며, 크레인에 통합된 안전 기능을 식별하고 이해하는 것이 필수적입니다. 관련 안전 표준을 준수하면 크레인이 운전자에게 안전하고 사고 위험이 최소화됩니다.
크레인 도면의 주요 안전 기능:
리미트 스위치: 이 장치는 크레인이 안전한 경계를 넘어서 이동하는 것을 방지합니다(예: 크레인이 레일을 따라 너무 멀리 이동하거나 후크를 너무 높이 올리는 것을 방지).
과부하 보호: 크레인이 정격 용량을 초과하여 하중을 들어 올리는 것을 방지하는 시스템입니다. 이는 일반적으로 호이스팅 장비에 연결된 안전 메커니즘으로 설계에 표시됩니다.
충돌 방지 시스템: 일부 크레인, 특히 혼잡한 지역의 크레인에는 다른 크레인이나 장애물과의 사고를 방지하기 위해 충돌 방지 시스템이 포함되어 있습니다.
비상 정지 시스템: 도면에 명확하게 표시된 이 시스템을 통해 운전자는 비상 상황에서 크레인을 정지할 수 있습니다.
표준 준수 보장: 크레인 도면은 관련 안전 표준(예: OSHA, ISO 9001 또는 EN 15011)을 참조해야 합니다. 안전한 작동, 유지보수 및 검사를 위해 설계가 이러한 표준을 준수하는지 확인하십시오. 확인 사항:
업계 표준에 따른 부하 및 안정성 등급.
장애물 근처에서 안전한 작동을 보장하기 위한 여유 공간 요구 사항.
적절한 라벨링 및 안전 표시.
다른 시스템과의 조정
크레인은 단독으로 작동하지 않습니다. 그것은 더 큰 건물 시스템의 일부입니다. 원활한 통합과 효과적인 작동을 보장하려면 크레인 설계를 다른 시스템과 조정하는 것이 중요합니다.
전기 시스템:
크레인은 전기 모터로 구동되는 경우가 많으며 특수 배선, 전기 패널 및 제어 시스템이 필요할 수 있습니다.
크레인 설계 도면에는 전기 연결, 전원 공급 장치 요구 사항 및 안전 스위치가 표시되어야 합니다.
크레인의 전기 시스템이 정격 전력 및 제어 인터페이스를 포함한 시설의 전기 인프라와 호환되는지 확인하십시오.
기계 시스템:
트롤리 및 호이스트와 같은 크레인의 이동 시스템은 활주로 레일이나 지지 구조물과 같은 시설의 다른 기계 시스템과 정렬되어야 합니다.
윤활 지점과 같은 크레인의 유지 관리 요구 사항과 이것이 다른 장비에 어떤 영향을 미칠 수 있는지 고려하십시오.
구조적 통합:
크레인의 구성 요소는 건물 구조에 올바르게 고정되어야 합니다. 크레인이 설치될 기초, 기둥, 보의 레이아웃과 구조적 무결성을 검토합니다.
크레인 주변의 공간이 전체 이동 범위에 적합하고 크레인이 HVAC, 조명 또는 배관과 같은 다른 시스템을 방해하지 않는지 확인하십시오.
다른 장비와의 조정:
크레인은 자동화된 자재 처리 시스템, 컨베이어 또는 생산 라인과 같은 대규모 시스템의 일부인 경우가 많습니다. 크레인이 다른 장비와 함께 작동할 수 있도록 적절한 위치와 크기를 지정했는지 확인하십시오.
건물 및 기타 기계의 레이아웃을 조정하면 작업 흐름이 최적화되고 병목 현상이 줄어듭니다.
크레인 설계 도면을 읽을 때 피해야 할 일반적인 실수
규모와 차원의 잘못된 해석
크레인 설계 도면을 읽을 때 가장 흔히 저지르는 오류 중 하나는 크레인과 해당 구성 요소의 규모와 치수를 오해하는 것입니다.
스케일 변환 오류를 방지하는 방법:
크레인 도면은 종종 일정한 비율(예: 1:100 또는 1:50)로 그려지는데, 이는 도면의 치수가 실제 측정값의 축소 버전임을 의미합니다.
배율 재확인: 항상 처음에 도면의 배율을 확인하십시오. 일반적으로 제목 블록이나 도면 경계 근처에 표시됩니다.
눈금자 사용: 눈금 변환 실수를 방지하려면 눈금자를 사용하여 도면에서 직접 측정하십시오. 이렇게 하면 읽고 있는 치수가 풀사이즈 크레인에 대해 정확하다는 것을 보장할 수 있습니다.
단위 고려: 측정 단위가 밀리미터(mm), 센티미터(cm) 또는 미터(m)인지 주의하세요. 단위를 잘못 읽으면 부품을 제작하거나 조립할 때 비용이 많이 드는 오류가 발생할 수 있습니다.
치수를 잘못 읽음:
모든 치수를 교차 점검하십시오. 모든 치수(높이, 길이, 너비 및 간격)가 크레인의 사양 및 용도와 일치하는지 확인하십시오.
총 치수 확인: 개별 구성 요소 측정을 통해 전체 크레인 크기를 다시 확인하여 레이아웃이 사용 가능한 공간 내에서 작동하는지 확인합니다.
구조적 또는 안전 세부 사항 간과
또 다른 심각한 실수는 적절한 크레인 설치 및 안전한 작동에 필요한 중요한 구조 요소나 안전 기능을 간과하는 것입니다.
정리 및 공간:
여유 공간 이해: 크레인의 움직이는 부품(예: 후크, 트롤리, 호이스트)과 기타 구조물(예: 빔, 벽 또는 장비) 사이에 충분한 여유 공간이 있는지 항상 확인하십시오. 이는 안전한 작동을 위해 중요합니다.
수직 및 수평 여유 공간: 수직 여유 공간(후크 높이 및 크레인 높이)과 수평 여유 공간(활주로를 따라 이동할 수 있는 공간)을 모두 확인합니다.
내하중 용량:
구조적 무결성 확인: 크레인이 어떻게 지지되는지 주의 깊게 살펴보세요. 하중 지지력을 잘못 해석하거나 무시하면 크레인이 불안정해지거나 고장날 수 있습니다.
재료 사양 확인: 빔 및 대들보와 같은 구조 구성 요소에 사용되는 재료를 검토하여 크레인 하중에 필요한 강도와 내구성을 충족하는지 확인합니다.
안전 기능:
과부하 보호: 크레인이 정격 용량을 초과하는 중량을 들어 올리는 것을 방지하는 과부하 보호 장치를 항상 도면에서 확인하십시오.
리미트 스위치 및 비상 시스템: 리미트 스위치, 비상 정지 버튼, 충돌 방지 시스템과 같은 안전 장치가 설계에 올바르게 통합되었는지 확인하십시오.
표준 준수: 도면에서 업계 표준(예: ISO, OSHA)을 참조하여 설계가 안전 규정을 준수하는지 확인합니다.
안전 간과의 결과: 이러한 중요한 요소를 무시하면 사고, 과도한 마모 또는 심지어 완전한 크레인 고장이 발생할 수 있습니다. 도면을 해석할 때 항상 안전을 최우선으로 생각하십시오.
누락된 키 세부정보
크레인 설계 도면에는 많은 정보가 포함되어 있으며 각 섹션을 주의 깊게 검토하지 않으면 중요한 요소를 간과하기 쉽습니다.
모든 섹션에 대한 철저한 검토:
모든 뷰를 교차 확인하세요. 평면도나 한 섹션에만 집중하지 마세요. 입면도, 단면도, 상세 도면을 포함한 모든 뷰를 확인하여 누락된 부분이 없는지 확인하십시오. 각 보기에는 다른 보기를 보완하는 중요한 세부 정보가 표시됩니다.
작지만 중요한 세부 정보 찾기: 용접 기호, 재료 사양 또는 공차 표시와 같은 작은 주석도 크레인 구성 또는 조립 방법에 큰 영향을 미칠 수 있습니다. 이러한 세부 사항이 누락되면 제작 또는 설치 시 실수가 발생할 수 있습니다.
집중할 주요 영역:
조립 세부사항: 도면에서 자세한 조립 지침을 찾아보세요. 이는 크레인 구성 요소가 어떻게 결합되는지 이해하는 데 중요합니다.
연결점: 조인트, 용접, 패스너 등의 연결점에 주의하세요. 이는 구조적 무결성과 안전한 작동에 매우 중요합니다.
유지 보수 및 검사 요구 사항: 때로는 장기적인 크레인 성능을 보장하는 데 필수적인 유지 보수 접근 지점과 검사 절차가 도면에 명시되어 있습니다.
누락된 세부사항으로 인해 비용이 많이 드는 이유: 크레인 설계 프로세스에서 중요한 부품이나 단계를 간과하면 잘못된 설치, 안전 위험, 비용이 많이 드는 재작업 또는 건설 및 운영 단계 지연으로 이어질 수 있습니다.
초보자를 위한 실용적인 팁
크레인 도면 읽기에 대한 자신감을 키우는 방법
이제 막 시작하는 사람들에게는 크레인 설계 도면을 읽는 것이 겁이 날 수 있습니다. 그러나 올바른 접근 방식을 사용하면 자신감을 키우고 이러한 도면을 효과적으로 해석할 수 있습니다.
기본 도면으로 시작: 더 자세하고 복잡한 크레인 설계로 넘어가기 전에 간단한 크레인 설계에 중점을 두는 것부터 시작하십시오. 평면도, 입면도 등 기본 요소를 이해하면 탄탄한 기초를 다질 수 있습니다.
용어 숙지: 크레인 설계 도면에는 특정 용어(예: 여유 공간, 부하 용량, 대들보)가 사용됩니다. 일반적인 용어를 이해하면 그림의 각 부분이 무엇을 나타내는지 이해하는 데 도움이 됩니다.
도면 분석: 크레인 도면을 한 번에 읽으려고 하지 마십시오. 이를 더 작은 섹션(평면도, 입면도, 단면도 등)으로 나누고 한 번에 한 부분을 해석하는 데 집중하세요. 이 체계적인 접근 방식은 전체 그림을 점차적으로 종합하는 데 도움이 됩니다.
체계적인 접근 방식 사용: 먼저 제목 블록에서 규모, 도면 날짜, 프로젝트 이름과 같은 중요한 정보를 확인하세요. 그런 다음 치수, 공차, 메모 등의 주요 기능을 검토합니다.
추가 학습을 위한 권장 리소스
이해를 심화하고 기술을 향상시키기 위해 다양한 리소스를 사용할 수 있습니다.
교과서: 기계 및 구조 공학의 기초, 특히 크레인 설계 및 건설을 다루는 교과서를 찾으십시오.
예: Stephen P. Richmond의 "크레인 설계 및 건설"
온라인 과정: 많은 플랫폼에서 기술 도면, CAD 소프트웨어 및 크레인 작업 해석에 대한 과정을 제공합니다.
예: Coursera, Udemy 또는 LinkedIn Learning과 같은 플랫폼은 기술 도면 및 크레인 작동에 대한 전문 과정을 제공합니다.
제조업체 리소스: 제조업체는 종종 다양한 크레인 유형의 특정 요구 사항을 이해하는 데 도움이 될 수 있는 크레인 모델에 대한 세부 도면을 제공합니다.
엔지니어링 포럼 및 커뮤니티: 전문가들이 크레인 설계에 대해 토론하고 경험을 공유하는 온라인 커뮤니티에 가입하세요. 이는 다른 사람들로부터 배우고 크레인 도면의 까다로운 측면에 대해 질문할 수 있는 훌륭한 방법입니다.
실제 사례로 연습
크레인 도면을 읽는 것은 연습을 통해 향상되는 기술입니다. 실제 경험을 효과적으로 구축할 수 있는 방법은 다음과 같습니다.
간단한 크레인 설계로 시작: 단일 대들보 오버헤드 크레인이나 소형 갠트리 크레인과 같은 기본 크레인으로 시작하십시오. 이러한 디자인은 덜 복잡하며 활주로 시스템, 승강 영역, 트롤리 이동과 같은 주요 기능을 해석하는 방법을 배우는 데 도움이 됩니다.
점진적으로 복잡한 설계로 전환: 기본 도면에 익숙해지면 이중 대들보 크레인이나 특정 응용 분야를 위한 맞춤형 크레인과 같은 보다 복잡한 설계에 도전해 보세요. 이러한 설계에는 종종 더 복잡한 구성 요소와 구조적 세부 사항이 포함됩니다.
연습을 위해 제조업체 도면 사용: 많은 크레인 제조업체가 온라인에서 예제 도면을 제공합니다. 이러한 실제 사례를 연구하여 구성 요소가 어떻게 배치되어 있는지 확인하고 크레인 시스템이 어떻게 결합되는지 더 잘 이해하십시오.
스케치하기: 일련의 사양을 기반으로 자신만의 크레인 디자인을 스케치해 보세요. 이 연습은 다양한 구성 요소가 어떻게 상호 작용하고 학습을 강화하는지 시각화하는 데 도움이 될 수 있습니다.
엔지니어 및 디자이너와의 협업
크레인 도면의 세부 사항이 확실하지 않은 경우 주저하지 말고 전문가에게 문의하세요. 효과적인 협업은 오해를 해소하고 전반적인 이해를 높이는 데 도움이 될 수 있습니다.
구체적인 질문을 하십시오: 엔지니어나 설계자와 대화할 때 도움이 필요한 것이 무엇인지 명확히 밝히십시오. 예를 들어, "이 그림을 설명할 수 있습니까?"라고 묻는 대신 "이 단면도에서 크레인 후크와 지붕 사이의 간격을 명확히 할 수 있습니까?"라고 질문하십시오.
설계 프로세스 학습: 재료 선택이나 구조적 고려 사항과 같은 특정 설계 선택의 근거에 대해 엔지니어에게 문의하십시오. 특정 결정이 내려지는 이유를 이해하면 디자인 프로세스에 대한 더 깊은 통찰력을 얻을 수 있습니다.
협업 도구 활용: 많은 엔지니어가 크레인 도면을 작성하기 위해 AutoCAD 또는 Revit과 같은 소프트웨어를 사용합니다. 디지털 플랫폼에서 작업하는 경우 측정 또는 주석 기능과 같은 일반적인 도구를 숙지하여 디자이너와 효과적으로 소통하세요.
적극적으로 의사소통하십시오. 치수가 너무 작거나 간격이 불명확한 등 설계에서 잠재적인 문제를 발견한 경우 초기에 팀에 문제를 제기하세요. 사전 예방적인 커뮤니케이션을 통해 시간을 절약하고 오류를 예방할 수 있습니다.
결론
크레인을 안전하고 효율적으로 설치하고 작동하려면 크레인 설계 도면을 이해하는 것이 필수적입니다. 이러한 도면은 크레인의 구조, 구성 요소 및 기능에 대한 자세한 정보를 제공하므로 엔지니어, 설계자 및 운영자는 크레인 설치, 유지 관리 및 안전에 대해 정보를 바탕으로 결정을 내릴 수 있습니다.
크레인 도면을 마스터하면 다음을 수행할 수 있습니다.
적절한 크레인 설치 보장: 크레인 설계 도면은 구성 요소의 정확한 위치 지정 및 설치를 안내하여 비용이 많이 드는 오류와 지연을 방지하는 데 도움이 됩니다.
안전 증진: 크레인 치수, 간격 및 부하 용량을 명확하게 이해하면 크레인이 안전한 환경에 설치되고 설계 한계 내에서 작동되도록 할 수 있습니다.
성능 최적화: 하중 용량, 빔 강도, 호이스팅 메커니즘과 같은 주요 설계 요소를 해석하여 크레인이 의도한 대로 작동하는지 확인하고 장비 고장을 방지하고 수명을 늘릴 수 있습니다.
궁극적으로 크레인 도면은 안전하고 효과적이며 효율적인 크레인 작업을 위한 청사진입니다. 맞춤형 오버헤드 크레인 설계가 필요한 경우 언제든지 문의해 주세요.













