모바일 더블 빔 갠트리 크레인 100톤
제품 설명
그만큼이동식 이중빔 갠트리 크레인 100톤최대의 안정성과 효율성으로 큰 하중을 처리하고 운반하도록 설계된{0}}중형 리프팅 장비입니다. 이중 대들보와 강력한 호이스팅 시스템을 갖춘 이 크레인은 높은 리프팅 용량, 강력한 강성 및 안정적인 성능을 보장합니다. 이동식 설계를 통해 건설 현장, 조선소, 철강 공장, 대규모{3}}창고 등 작업장 내에서 유연한 이동이 가능하므로 중량물 취급 작업에 이상적입니다.
리프팅 용량의100톤, 이동식 이중 빔 갠트리 크레인은 대형 기계, 철 구조물, 컨테이너 및 기타 부피가 큰 하중을 들어 올리는 데 적합합니다. 견고한 강철 구조, 고급 제어 시스템, 객실 제어 또는 무선 원격 작동 옵션이 특징입니다. 크레인은 특정 프로젝트 요구 사항을 충족하기 위해 다양한 범위, 리프팅 높이 및 이동 메커니즘으로 맞춤 설정할 수 있습니다.
이 유형의 갠트리 크레인은 다음을 결합합니다.높은 하중-지탱 능력, 안정적인 작동 및 이동성, 안전하고 효율적인 중량물 리프팅이 필요한 업계에 안정적인 솔루션입니다.-
핵심 구성 요소:엔진, 기어, 기어박스
원산지: 중국 허난
보증:1년
무게(KG):20000kg
영상 발신-검사:제공됨
기계 테스트 보고서: 제공
신청:널리
색깔:주문을 받아서 만들어질 수 있습니다
경간:12~30m
근무 의무:A3 /A4
크레인 기능: 모바일 갠트리 크레인
리프팅 속도:가변 속도(표준)
제어 방법: 지상 제어+ 원격 제어(맞춤형)
리프팅 메커니즘:와이어 로프 전기 호이스트

그림 및 구성 요소
1. 더블 메인 빔– 견고한-용접 박스 빔 또는 트러스 구조로 100톤 리프팅 작업에 강력한 강성과 안정성을 제공합니다.
1) 대들보라고도하는 최고의 갠트리 크레인의 메인 빔은 리프팅 메커니즘 (예 : 트롤리 또는 호이스트)을 지원하는 주요 구조 구성 요소입니다. 이는 크레인의 활주로에 걸쳐 있으며 하중을 지지하고 이를 지지 다리로 전달하는 역할을 합니다. 메인 빔은 갠트리 크레인 설계의 중요한 부분으로 안정성과 하중-지탱 능력을 보장합니다.
메인 빔은 일반적으로 높은 강도-대-중량 비율과 무거운 하중에 대한 내구성으로 인해 강철(예: 탄소강 또는 고강도 강철)로 만들어집니다. 이중 대들보: 이 설계에는 2개의 수평 빔이 통합되어 하중을 보다 균일하게 분산시키고 더 큰 리프팅 용량을 제공하며 일반적으로 무거운 작업에 사용됩니다.-
빔은 호이스트, 트롤리 및 리프팅 작업 자체에 의해 부과되는 하중을 처리할 수 있도록 설계되어야 합니다. 여기에는 작동 중 동적 힘과 크레인이 실외에 있는 경우 풍하중과 같은 요소가 포함됩니다. 빔의 크기와 강도는 예상되는 최대 하중, 크레인의 범위, 수행할 작업 유형에 따라 달라집니다. 처짐, 굽힘 및 전단에 대한 계산은 빔이 응력을 처리할 수 있는지 확인하는 데 필수적입니다.

2. 호이스트 메커니즘(호이스트/윈치가 있는 트롤리)– 2개의 메인 빔 사이에 장착되며, 최대 100톤을 안전하게 들어올릴 수 있는 대용량 윈치, 모터 및 드럼 시스템을 갖추고 있습니다.-
모터: AC 모터: 특히 중부하 작업에 사용되는 갠트리 크레인에 사용되는 가장 일반적인 유형의 모터입니다-. 안정적이고 일관된 전력을 제공하며 유지 관리가 쉽습니다. DC 모터: 현재는 AC 모터의 증가로 인해 덜 일반적이지만 DC 모터는 여전히 가변 속도 제어가 필요한 특정 크레인 시스템에 사용됩니다. 유압 모터는 갠트리 크레인, 특히 높은 토크와 정밀 제어가 필요한 응용 분야에 사용됩니다. 기어 모터는 전기 모터와 기어박스를 결합하여 리프팅에 원하는 속도 및 토크 특성을 제공합니다.
감속기: 갠트리 크레인 리프팅 시스템의 감속기는 일반적으로 크레인의 호이스팅 또는 트롤리 이동을 구동하는 모터의 속도를 줄이는 동시에 제공되는 토크(힘)를 증가시키는 기계 장치를 의미합니다. 기어박스 또는 감속기어라고도 불리는 감속기는 이동 속도를 제어하고 크레인이 무거운 하중을 안전하게 들어올릴 수 있도록 보장하기 때문에 크레인 리프팅 시스템의 필수적인 부분입니다.
드럼: 드럼은 무거운 하중을 견디고 시간이 지남에 따른 마모, 부식 및 변형을 방지하기 위해 고강도, 고하중-재료(예: 합금강)로 제작되어야 합니다. 고정밀 기계 가공을 통해 케이블이나 로프를 부드럽게 감기고 풀 수 있어 로프의 마모가 최소화되고 유지 관리 필요성이 줄어듭니다. 적절하게 홈이 파인 드럼은 로프가 겹치거나 미끄러지는 것을 방지하는 데 도움이 됩니다. 종종 드럼과 통합되는 효율적인 제동 메커니즘은 크레인이 하중을 안전하게 고정할 수 있도록 보장합니다. 들어 올리거나 제자리에 고정할 때 위치에 두십시오. 들어 올렸다 내렸다를 반복하면 드럼에 열이 발생할 수 있습니다. 잘 설계된 드럼은-열을 효율적으로 분산시켜 케이블 마모를 줄이고 크레인 시스템의 수명을 연장해야 합니다.
와이어 로프: 갠트리 크레인 리프팅 시스템에서 와이어 로프는 주요 리프팅 기능을 제공하는 중요한 구성 요소입니다. 로프는 높은 장력, 마모, 굽힘 및 환경 조건을 견뎌야 하기 때문에 갠트리 크레인에 적합한 와이어 로프를 선택하는 것은 안전하고 효율적인 작동에 필수적입니다.
풀리 블록: 갠트리 크레인 리프팅 시스템의 풀리 블록은 무거운 하중을 쉽게 들어 올리고 내리고 이동하는 데 도움이 되는 중요한 구성 요소입니다. 풀리 블록은 바퀴, 로프 또는 체인의 조합을 사용하여 무게를 분산시켜 크레인의 하중 응력을 줄이고 리프팅 과정을 용이하게 합니다. 풀리는 무거운 하중을 들어 올리는 데 필요한 힘의 양을 줄여 기계적 이점을 제공하도록 설계되었습니다. 여러 개의 도르래를 사용하면 시스템이 더 적은 힘으로 더 큰 무게를 들어 올릴 수 있습니다. 갠트리 크레인의 도르래 블록은 하중의 부드럽고 정확한 수직 이동을 보장하며 이는 정확성이 요구되는 산업 작업에 필수적입니다. 잠금 장치와 안전 걸쇠를 사용하면 도르래 블록은 특히 중부하 작업에서 하중의 안전성과 제어를 향상시킵니다.-풀리 블록은 일반적으로 강철과 같은 고강도 재료로 제작되므로 내구성이 뛰어나고 마모가 줄어듭니다.
리프팅 장치: 갠트리 크레인 시스템의 리프팅 장치는 하중을 올리고 내리는 일을 담당하는 주요 메커니즘입니다. 일반적으로 다양한 리프팅 응용 분야에 안정성, 제어 및 강도를 제공하도록 특별히 설계된 구성 요소의 조합이 포함됩니다.
![]() |
![]() |
3. 엔드빔– 메인 빔을 연결하고 레일이나 바퀴로 크레인의 움직임을 지원합니다.
1) 갠트리 크레인의 엔드 캐리지는 크레인 구조의 중요한 부분으로 지정된 경로를 따라 크레인의 이동과 안정성을 담당합니다.
2) 엔드 캐리지는 크레인 대들보의 각 끝에 위치하며 크레인이 트랙을 따라 이동할 수 있도록 하는 바퀴를 수용합니다. 이는 특히 무거운 하중에서 크레인의 안전하고 안정적인 이동에 필요한 안정성과 하중{2}}지지 용량을 제공합니다. 엔드 캐리지는 또한 하중의 무게를 크레인 구조 전체와 트랙 아래로 분산시키는 데 도움이 됩니다.
3) 일반적으로 고강도 강철로 제작되는 이 바퀴는 트랙을 따라 부드럽게 움직일 수 있도록 장착됩니다. 바퀴는 디자인에 따라 전동식이거나 자유롭게 움직일 수 있습니다-. 전동 휠은 크레인의 이동과 속도를 제어하기 위해 기어 모터가 필요합니다. 고품질-품질의 베어링과 축이 휠을 지지하여 부드러운 움직임을 보장하고 크레인의 마모를 줄입니다. 캐리지 끝에 설치되는 이 버퍼는 크레인이 트랙에서 벗어나는 것을 방지하는 정지 메커니즘을 제공합니다. 특히 화물 취급이나 비상 상황 시 움직임을 늦추거나 정지시켜 안전한 작동을 보장합니다.
![]() |
![]() |
4.크레인 주행 메커니즘– 레일이나 이동 트랙을 따라 전체 크레인이 원활하게 이동할 수 있도록 하는 모터-바퀴 또는 대차.
1) 작동 원리
갠트리 크레인의 이동 메커니즘은 레일을 따라 바퀴를 구동하는 모터와 기어박스를 통해 전기 에너지를 기계 에너지로 변환하여 작동합니다. 제어 시스템은 모션을 제어하여 부드럽고 제어된 가속 및 감속을 제공하며, 제동 시스템은 안정성과 안전성을 보장합니다.
2) 크레인 조작기구의 기능
1. 수평 이동: 크레인의 이동 메커니즘을 통해 전체 갠트리가 미리 정의된 영역을 가로질러 수평으로 이동할 수 있으며, 이를 통해 크레인은 레일이나 트랙을 따라 다양한 지점에 도달할 수 있습니다.
2. 하중 위치 지정: 이 메커니즘을 통해 하중의 정확한 위치 지정이 가능합니다. 크레인의 이동 속도와 방향을 제어함으로써 작업자는 무거운 물품을 높은 정확도로 특정 위치로 이동할 수 있으며, 이는 적재, 하역 및 적재 작업에 매우 중요합니다.
3. 유연성 및 다용성: 이동 메커니즘을 통해 갠트리 크레인이 작업 영역 내의 다양한 지점에 접근할 수 있으므로 다양한 작업에 다용도로 사용할 수 있습니다. 또한 크레인은 필요에 따라 다양한 방향이나 구성으로 하중을 처리할 수 있습니다.
4. 속도 제어: 이동 메커니즘에는 일반적으로 속도 제어가 포함되어 있어 운전자가 화물의 무게와 작업 요구 사항에 따라 이동을 조정할 수 있습니다. 가변 속도 제어는 흔들림이나 정렬 불량의 위험을 최소화하여 작업의 전반적인 안전성과 효율성을 향상시킵니다.
5. 안전 및 안정성: 갠트리 크레인은 종종 매우 무거운 하중을 운반하므로 이동 메커니즘에는 안정성을 유지하고 탈선을 방지하도록 설계된 구성 요소가 포함됩니다. 안전하고 제어된 움직임을 보장하기 위해 브레이크, 제한 스위치 및 충돌 방지 시스템이 통합되는 경우가 많습니다.
5. 트롤리 주행 메커니즘
1) 구조적 구성
1. 트롤리 프레임: 트롤리 프레임은 트롤리의 모터, 기어박스, 바퀴 및 리프팅 메커니즘을 지지하는 주요 구조입니다. 구조적 강성을 유지하면서 하중을 견딜 수 있도록 설계되었습니다. 프레임은 내구성과 안정성을 보장하기 위해 고강도 강철로 제작되는 경우가 많습니다.
2. 주행 모터: 모터는 크레인의 대들보를 따라 트롤리의 움직임을 구동합니다. 모터는 부하 용량과 속도 요구 사항에 따라 선택되는 전기 모터인 경우가 많습니다. 크레인 설계에 따라 AC 또는 DC가 될 수 있으며 일반적으로 원활한 작동을 위해 가변 속도 드라이브가 있습니다.
3. 기어박스 또는 감속기: 기어박스 또는 감속기는 모터와 바퀴 사이에 장착되어 모터 속도를 줄이고 토크를 높여 트롤리가 무거운 하중을 효율적으로 처리할 수 있도록 합니다. 이 설정은 부하 흔들림을 방지하기 위해 제어된 가속 및 감속을 제공합니다.
4. 휠 어셈블리: 휠 어셈블리에는 대들보를 따라 이동할 수 있도록 트롤리 프레임에 장착된 바퀴가 포함되어 있습니다. 일반적으로 바퀴는 4개 이상이나 크레인의 크기와 용량에 따라 구성이 달라질 수 있습니다. 바퀴는 대들보 궤도의 마모를 줄이기 위해 강철이나 특수 재료로 만들 수 있습니다.
5. 레일 또는 트랙: 갠트리 크레인은 종종 크레인 대들보 상단을 따라 장착된 레일 또는 트랙 시스템을 사용합니다. 트롤리 바퀴는 이러한 레일을 따라 움직이며 대들보 길이를 따라 부드럽고 안내되는 움직임을 보장합니다.
6. 제동 시스템: 트롤리의 움직임을 제어하고 필요할 때 멈추려면 제동 시스템이 필수적입니다. 이는 모터 또는 기어박스와 통합된 전자기 또는 유압 브레이크일 수 있습니다. 브레이크는 의도하지 않은 트롤리의 움직임을 방지하고 필요할 때 화물을 제자리에 고정하는 데 도움이 됩니다.
7. 리미트 스위치 및 센서: 리미트 스위치와 센서는 트롤리의 위치와 움직임을 제어하고 모니터링하는 데 사용됩니다. 이는 대들보에 설정된 경계를 넘어 트롤리가 이동하는 것을 방지하고 안전한 작동을 보장합니다. 근접 센서나 레이저 포지셔닝 시스템도 정밀 포지셔닝에 사용될 수 있습니다.
8. 제어 시스템: 종종 크레인의 메인 제어판에 통합되는 제어 시스템을 통해 운전자는 트롤리의 이동, 속도 및 제동을 관리할 수 있습니다. 최신 시스템에는 작동 정밀도와 안전성을 향상시키기 위해 원격 제어 장치, VFD(가변 주파수 드라이브) 및 PLC(프로그램 가능 논리 컨트롤러)가 포함될 수 있습니다.
9. 케이블 릴 또는 꽃줄 시스템: 전력 공급 장치를 운반하는 트롤리의 경우, 케이블 릴 또는 꽃줄 시스템은 전원 케이블을 관리하여 엉킴을 방지하고 트롤리가 이동하는 동안 정리된 상태를 유지하도록 합니다. 이 시스템을 사용하면 트롤리가 대들보를 따라 이동할 때 케이블이 원활하게 확장 및 축소될 수 있습니다.
10. 범퍼 또는 충격 흡수 장치: 충격 흡수 장치 또는 범퍼는 일반적으로 트롤리가 트랙 끝에 도달할 경우 충격력을 최소화하기 위해 트롤리에 설치됩니다. 이는 갑작스러운 정지로 인한 잠재적인 손상으로부터 트롤리와 대들보를 모두 보호합니다.
2) 트롤리 작동 메커니즘의 기능
1. 이동 메커니즘을 통해 트롤리가 크레인의 대들보 또는 빔을 따라 수평으로 이동할 수 있어 갠트리의 전체 범위에 걸쳐 접근이 가능합니다. 트롤리를 이동함으로써 작업자는 의도한 위치에 정확하게 하중을 배치할 수 있습니다.
구동 모터는 갠트리 빔을 따라 트롤리 이동에 동력을 제공합니다. 기어박스는 모터 속도를 트롤리 이동에 적합한 최적의 속도로 줄여 제어력과 안전성을 향상시킵니다.
3. 트롤리는 대들보 또는 빔의 레일을 따라 이동하는 바퀴로 작동합니다. 이러한 바퀴는 무거운 하중을 지지하고 마모를 최소화하기 위해 고강도 재료로 제작되는 경우가 많습니다. 제동 시스템은 트롤리가 정확하게 정지하고 필요할 때 정지 상태를 유지할 수 있도록 보장합니다. 일부 고급 갠트리 크레인에는 트롤리 이동 메커니즘에 흔들림 방지 시스템 또는 속도 조절 기능이 포함되어 있어 하중을 안정화하고 흔들림을 줄이며 부드러운 가속 및 감속을 보장합니다.
6.크레인 휠
1. 단조강 또는 열처리된 합금과 같은 고품질-재료는 크레인 휠이 노출되는 무거운 하중과 가혹한 조건을 견딜 수 있도록 보장합니다. 높은 내마모성과 내구성이 중요합니다. 크레인 휠은 무거운 무게로 인한 변형을 방지하기 위한 적절한 엔지니어링을 통해 갠트리 크레인과 리프팅 자재의 하중을 처리하도록 설계되어야 합니다. 트랙을 따라 원활하게 이동하려면 크레인 휠이 올바른 정렬로 정밀하게 가공되어야-합니다. 이는 마찰을 줄이고 원활한 이동을 보장하며 레일 마모를 방지하는 데 도움이 됩니다.
2. 바퀴는 특정 트랙 프로파일과 일치하도록 설계되었습니다. 최고의 성능을 위해서는 탈선이나 과도한 마모와 같은 문제를 방지하기 위해 휠 유형과 크기가 갠트리 크레인의 트랙 시스템에 적합해야 합니다. 실외 또는 해양 환경에서 크레인 휠은 종종 습기, 염수 및 가혹한 기상 조건과 같은 요소에 노출됩니다. 최고의 휠은 부식-방지 코팅이나 재료를 사용하는 것입니다.
3. 고품질-크레인 휠에는 크레인의 성능과 안정성을 향상시키는 제동 시스템 또는 미끄럼 방지 기능과 같은 안전 장치도 함께 제공됩니다. 정기적인 검사와 고품질 베어링은-크레인 휠의 수명에 기여하여 갠트리 크레인이 최고의 효율로 작동하도록 보장합니다.
7.크레인 후크
1) .크레인 후크는 리프팅되는 하중에 부착되는 부품이므로 갠트리 크레인의 필수 구성 요소입니다. 무거운 하중을 안전하게 취급하고 이동이 용이하도록 설계되었습니다. 최고의 갠트리 크레인 후크는 일반적으로 내구성, 강도 및 안전성을 보장하기 위해 단조강 또는 합금강과 같은 고품질 재료로 제작됩니다. 후크는 화물이 미끄러지는 것을 방지할 수 있도록 인체공학적으로 설계되어야 합니다. 여기에는 강화된 스로트(하물이 연결되는 부분), 하중이 떨어지는 것을 방지하는 안전 걸쇠, 더 나은 그립감을 위한 곡선 또는 테이퍼형 디자인과 같은 기능이 포함됩니다.
크레인 후크는 갠트리 크레인의 정격 부하 용량과 일치해야 합니다. 안전 래치, 회전 방지 장치- 및 호이스트 시스템에 대한 견고한 연결이 필수적입니다. 이는 작동 중에 후크가 갑자기 열리거나 화물이 이탈되는 것을 방지합니다.
추가 보호를 위해 크레인 후크를 아연도금이나 페인팅과 같은 방청{0}}재료로 코팅하여 특히 실외 환경이나 혹독한 기상 조건에서 부식을 방지할 수 있습니다.

모터
AC 유도 모터: 신뢰성, 효율성 및 유지 관리 용이성으로 인해 갠트리 크레인에서 가장 일반적이고 널리 사용됩니다. 속도를 제어하기 위해 가변 주파수 드라이브(VFD)와 쌍을 이루는 경우가 많습니다.
DC 모터: 이는 탁월한 속도 제어 및 토크 특성을 제공하지만 AC 모터에 비해 유지 관리가 더 많이 필요하고 에너지 효율이-낮습니다.
동기 모터: 고부하 및 고정밀- 응용 분야에 사용되며 효율성이 높지만 일반적으로 가격이 더 비싸고 정교한 제어 시스템이 필요합니다.

.
소리와 빛 경보 시스템 및 리미트 스위치
1) 소리와 빛 경보 시스템
갠트리 크레인의 소리 및 빛 경보 시스템은 크레인 작동 중 잠재적인 위험이나 비정상적인 상황을 작업자와 직원에게 경고하도록 설계된 안전 기능입니다.
가벼운 경보: 가벼운 경보는 일반적으로 크레인이나 근처에 장착된 깜박이는 조명, 경광등 또는 스트로브 조명을 사용합니다. 조명은 상태의 심각도를 나타내기 위해 색상으로 구분되는- 경우가 많습니다(예: 빨간색은 위험, 노란색은 경고, 녹색은 안전한 작동). 깜박이는 조명은 크레인 주변 사람들에게 시각적 신호를 제공하여 가능한 위험 근처에 있는 보행자나 작업자에게 경고하는 데 도움이 됩니다.
2) 리미트 스위치
실외 갠트리 크레인의 리미트 스위치는 안전과 운영 효율성에 매우 중요합니다. 이는 크레인이 지정된 한계를 넘어서 이동하는 것을 방지하여 충돌과 사고를 방지하는 데 사용됩니다.
목적: 크레인의 호이스트 또는 트롤리가 레일을 따라 너무 멀리 이동하거나 안전 한계를 넘어 상승/하강하는 것을 방지합니다. 크레인이 과도하게-확장되거나 과도하게-이동하여 장비가 손상될 수 없도록 하는 데 도움이 됩니다. 효율적이고 안전한 작동을 위해 크레인이 설계된 한계 내에서 작동하도록 보장합니다.
유형: 기계식 리미트 스위치: 크레인의 움직이는 부분이 스위치에 물리적으로 접촉할 때 활성화됩니다. 레버, 롤러 또는 플런저로 구성될 수 있습니다. 전자 리미트 스위치: 센서 또는 근접 감지기를 사용하여 물리적 접촉 없이 부품의 위치를 감지합니다. 회전식 리미트 스위치: 일반적으로 크레인 회전에 사용되며 크레인 회전 메커니즘의 움직임을 모니터링합니다.

10.안전장치
1. 과부하 보호: 크레인이 정격 용량을 초과하여 하중을 들어올리는 것을 방지합니다. 이로 인해 손상이나 고장이 발생할 수 있습니다. 일반적으로 하중이 안전 한계를 초과할 때 경보를 울리거나 크레인을 자동으로 정지시키는 하중 센서가 포함됩니다.
2. 비상 정지 버튼: 비상 상황 발생 시 크레인 작동을 즉시 정지할 수 있는 방법을 제공합니다. 쉽게 접근할 수 있는 곳에 위치한 버튼을 누르면 예상치 못한 상황이 발생할 경우 모든 크레인의 움직임을 신속하게 중지할 수 있습니다.
3. -충돌 방지 시스템: 크레인이 구조물, 다른 크레인 또는 장애물과 충돌하는 것을 방지합니다. 센서, 카메라 또는 레이더 시스템을 사용하여 근처 물체를 감지하고 접촉이 발생하기 전에 크레인을 정지하거나 방향을 바꿉니다.
4. 리미트 스위치(Travel Limits): 크레인이 안전한 작동 범위를 벗어나는 것을 방지합니다.
이 스위치는 크레인이 수평 및 수직 방향 모두 이동 경로의 끝에 도달하면 크레인을 정지시킵니다.
5. 경적/경보 시스템: 크레인 이동이나 잠재적인 위험에 대해 직원에게 경고합니다. 특히 붐비거나 시끄러운 환경에서는 청각 경보 또는 깜박이는 조명을 통해 작업자에게 크레인 작동을 알립니다.
6. 하중 흔들림 제어: 하중의 흔들림을 최소화하여 안전성과 정밀도를 향상시킵니다. 소프트웨어 또는 기계 시스템은 하중을 안정화하기 위해 크레인의 동작을 조정하여 흔들림을 줄입니다.
7. 크레인 운전실 안전: 작업 중 크레인 운전자의 안전을 보장합니다. 안전벨트, 적절한 환기, 인체공학적 설계 및 비상 통신 시스템과 같은 안전 기능을 포함합니다.
8. 로프 및 호이스트 모니터링 시스템: 리프팅 메커니즘의 무결성을 보장합니다. 로프와 호이스트의 마모 및 손상을 모니터링하고 유지 관리 또는 교체가 필요할 때 경고를 제공합니다.
9. 풍속 모니터링: 안전하지 않은 기상 조건에서 크레인 작동을 방지합니다. 풍속 센서는 풍속이 안전한 작동 한계를 초과하면 자동으로 크레인 작동을 중지합니다.
10. 접지 및 정전기 방지 장치-: 전기 위험을 줄입니다. 크레인의 전기 시스템이 적절하게 접지되고 정전기가 최소화되어 감전이나 화재를 방지할 수 있습니다.
11. 추락 방지 시스템: 유지 관리 또는 작동 중에 직원이 추락하는 것을 방지합니다. 특히 높은 플랫폼과 통로에서 크레인의 가드 레일, 하니스 및 안전망을 포함합니다.
12. 틸트 센서(이동식 크레인용): 크레인이 넘어지는 것을 방지합니다. 크레인의 기울기를 모니터링하고 크레인이 고르지 않은 지면에 있거나 안전하지 않은 각도에 있는 경우 리프팅을 방지합니다.
13. 원격 제어 및 무선 안전 시스템: 운전자는 안전한 거리에서 크레인을 제어할 수 있습니다. 원격 제어 시스템을 사용하면 운전자가 위험 지역에서 멀리 떨어져 있어 운전자와 지상 직원 모두의 안전이 향상됩니다.
14. 검사 및 유지 관리 시스템: 기계적 고장을 방지하기 위해 크레인을 정기적으로 유지 관리합니다. 크레인을 안전하게 작동하기 위해 유지 관리 또는 검사가 필요할 때 경고하는 모니터링 시스템을 제공합니다.
15. 안전 및 경고등: 근처 직원에게 크레인 활동을 경고합니다. 깜박이는 표시등은 크레인이 작동 중이거나 근처에 잠재적인 위험이 있음을 나타냅니다.
11.제어 모드
1. 수동 제어: 조이스틱 또는 버튼 패널: 운전자는 조이스틱, 버튼 또는 페달을 사용하여 크레인을 제어하여 크레인의 브리지, 트롤리 및 호이스트를 이동합니다. 이 모드는 직접적인 제어를 제공하지만 운전자의 기술과 주의가 필요합니다.
2. 무선 원격 제어: 무선 컨트롤러를 사용하면 운전자가 멀리서 크레인을 제어하여 안전성과 가시성을 향상시킬 수 있습니다. 이는 일반적으로 실외 환경이나 무거운 하중을 처리하는 데 사용됩니다. 펜던트 제어 상자는 케이블을 통해 크레인에 연결됩니다.
3.자동 제어(자동/프로그램): 특히 산업 또는 항만 작업에서 일부 갠트리 크레인에는 크레인이 사람의 개입 없이 미리 정의된 작업을 수행할 수 있는 자동 제어 시스템이 장착되어 있습니다.
4. 하이브리드 제어(반-자동): 운전자가 특정 작업을 위해 크레인을 설정하고 시스템이 부하 위치 지정 또는 속도 제어와 같은 일부 측면을 자율적으로 처리하는 수동 및 자동 제어의 조합입니다.
5.PLC(프로그래밍 가능 논리 컨트롤러)를 사용한 오버헤드 크레인 제어: 더욱 발전된 갠트리 크레인이 PLC 시스템과 통합되어 작업, 진단 및 실시간 조정을 정밀하게 제어하여 효율성을 극대화합니다.
현대 크레인 시스템에서는 효율성을 높이고 인적 오류를 줄이며 안전성을 높이기 위해 반자동 또는 완전 자동 제어로 추세가 바뀌고 있습니다. 그러나 보다 위험한 환경이나 미세한 제어가 필요한 경우에는 여전히 수동 제어가 일반적으로 사용됩니다.

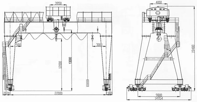
스케치

주요 기술

장점
높은 리프팅 용량– 정격 용량이 최대 100톤으로 대형 및 매우 무거운 하중을 안전하게 처리할 수 있습니다.
강력하고 안정적인 구조– 이중 빔 설계는 고강도 작업에서도 높은 강성과 처짐 감소, 안정적인 성능을 보장합니다.-
이동성과 유연성– 레일에 장착된 -또는 고무로 고정된- 이동 메커니즘을 갖추고 있어 크레인을 다양한 작업 영역으로 이동할 수 있어 활용도가 높아집니다.
넓은 작업 범위– 넓은 스팬과 리프팅 높이로 맞춤 제작이 가능하므로 철제 빔, 기계, 컨테이너 등 길고 부피가 큰 물품을 취급하는 데 적합합니다.
효율적인 자재 취급– 화물의 원활한 리프팅, 이동 및 위치 지정을 제공하여 처리 시간을 줄이고 생산성을 향상시킵니다.
다중 제어 옵션– 캐빈, 펜던트 또는 무선 원격 제어 옵션이 안전하고 편리한 작동을 보장합니다.
내구성과 신뢰성– 고품질 강철, 고급 용접 기술, 내마모성 부품으로 제작되어{0}}긴 서비스 수명을 보장합니다.
향상된 안전성– 안전한 작동을 위해 과부하 보호, 리미트 스위치, 비상 정지 시스템 및 충돌 방지 장치가-장착되어 있습니다.
유지보수가 적은 설계– 주요 구성 요소에 쉽게 접근할 수 있고 효율적인 전기 시스템이 가동 중단 시간과 유지 관리 비용을 줄여줍니다.
맞춤형 디자인– 스팬, 리프팅 높이, 이동 속도 및 제어 시스템은 특정 프로젝트 요구 사항을 충족하도록 맞춤화될 수 있습니다.
애플리케이션:
모바일 이중 빔 갠트리 크레인 100톤 애플리케이션
조선소 및 조선소– 조립 및 수리 중에 선박 부품, 무거운 철판, 엔진 및 선박 블록을 들어 올리는 데 사용됩니다.
철강 공장 및 금속 야적장– 강철 코일, 슬래브, 빌렛, 대들보 및 기타 중금속 제품을 취급합니다.
건설현장– 프리캐스트 콘크리트 빔, 교량 부분, 중장비 및 기타 대형 건축 자재를 들어 올립니다.
발전소 및 에너지 프로젝트– 터빈, 발전기, 변압기 및 기타 대형 장비 설치.
철도 및 교량 엔지니어링– 무거운 교량 대들보, 레일 섹션 및 구조 구성 요소를 적재, 하역 및 배치하는 데 사용됩니다.
광업 및 중공업– 대형 광산 장비, 기계, 원자재 이동.
항만 및 컨테이너 터미널– 무거운 화물, 벌크 화물 또는 대형 컨테이너를 싣고 내리는 작업입니다.
항공우주 및 기계 제조– 대형 부품, 금형 또는 중장비-장비 조립 및 운반.
창고 및 물류 센터– 효율적이고 안전한 리프팅이 필요한 대용량-중량물 취급.
조립식 야드– 프리캐스트 콘크리트 세그먼트와 무거운 모듈을 이동하고 쌓습니다.
크레인 생산 절차
1. 설계 및 엔지니어링: 이 프로세스는 리프팅 용량, 범위, 높이 및 환경 조건(실내, 실외, 부식성 대기 등)과 같은 프로젝트 요구 사항을 이해하는 것부터 시작됩니다. 사양을 수집한 후 엔지니어는 CAD(컴퓨터{3}}지원 설계) 소프트웨어를 사용하여 세부 도면 및 구조 계산을 작성합니다. 크레인 설계에는 구조, 리프팅 메커니즘, 제어 시스템 및 안전 기능이 포함됩니다.
2. 자재 조달: 갠트리 프레임, 다리, 크로스 멤버 및 기타 구성 요소에 사용되는 고강도 강판과 빔이 -공급됩니다. 재료는 수명과 하중{3}}지탱 능력을 보장하기 위해 품질 표준을 충족해야 합니다. 이러한 재료는 신뢰할 수 있는 공급업체에서 공급됩니다. 호이스팅 메커니즘, 트롤리, 전기 제어 패널 및 기타 자동화 시스템은 설계 사양에 따라 공급됩니다.
3. 갠트리 프레임 제작: 대형 강판과 단면을 CNC 기계나 기타 절단 기술을 사용하여 크기에 맞게 절단합니다. 그런 다음 갠트리 프레임 구성 요소(직립, 크로스 빔, 갠트리 다리 등)를 형성하도록 모양이 만들어집니다. 갠트리 프레임의 다양한 부분이 함께 용접됩니다. 견고하고 안정적인 접합을 보장하기 위해 정밀 용접 기술이 사용됩니다. 프레임의 정렬과 정확성에 특별한 주의를 기울입니다. 용접 후 조인트와 표면을 연마하고 매끄럽게 처리하여 과도한 재료나 날카로운 모서리를 제거합니다.
4. 크레인 구성 요소 조립: 용접된 갠트리 프레임은 다리, 크로스 빔 및 기타 구조 요소를 연결하여 조립됩니다. 호이스트 트롤리, 크레인 후크, 도르래 및 리프팅 로프는 설계에 따라 설치됩니다. 여기에는 필요한 동작 범위 내에서 작동하도록 트롤리와 호이스트를 조정하는 것이 포함됩니다. 제어판, 전기 배선, 모터, 센서 및 원격 제어 시스템이 크레인에 통합되어 있습니다.
5. 테스트 및 품질 관리: 크레인은 정격 하중을 고장 없이 처리할 수 있는지 확인하기 위해 엄격한 하중 테스트를 거칩니다. 이동, 들어 올리기, 내리기, 제어 응답성 등 크레인의 모든 기능을 테스트합니다. 리미트 스위치, 비상 정지, 과부하 보호 등의 안전 기능도 점검합니다. 크레인은 용접, 전기 부품 또는 구조 정렬에 결함이 있는지 정밀 검사를 받습니다.
6. 페인팅 및 코팅: 크레인 프레임과 구성 요소를 철저히 청소하고 페인팅을 준비합니다. 여기에는 녹을 제거하고 매끄러운 표면을 보장하기 위해 샌드블라스팅이 포함될 수 있습니다. 일반적으로 부식 방지 페인트인 보호 코팅이 갠트리 크레인에 적용됩니다.
7. 최종 조립 및 시운전: 페인팅 및 코팅 후 크레인을 재조립하고 최종 조정을 수행합니다.
8. 배송: 갠트리 크레인이 모든 테스트와 검사를 통과하면 고객에게 배송될 준비가 됩니다. 보다 쉬운 운송을 위해 분해하고 -고객이 있는 현장에서 재조립할 수 있습니다. 크레인은 작업 현장에서 조립되며 작업 환경에서 완벽하게 작동하는지 확인하기 위해 추가 테스트 및 조정이 이루어집니다.
9. 설치 후-지원: 설치 후 제조업체는 종종 지속적인 유지 관리 서비스와 기술 지원을 제공하여 크레인의 지속적인 작동과 수명을 보장합니다.

워크샵 보기:
이 회사는 지능형 장비 관리 플랫폼을 설치하고 310세트의 핸들링 및 용접 로봇을 설치했습니다. 계획이 완료되면 500개 이상의 세트(세트)가 생기고 장비 네트워킹 비율은 95%에 도달할 것입니다.. 32 용접 라인이 사용되었으며 50개가 설치될 예정이며 전체 제품 라인의 자동화 비율이 85%에 도달했습니다.





인기 탭: 모바일 더블 빔 갠트리 크레인 100톤, 중국 모바일 더블 빔 갠트리 크레인 100톤 제조 업체, 공급 업체, 공장
당신은 또한 좋아할지도 모릅니다
문의 보내기





























